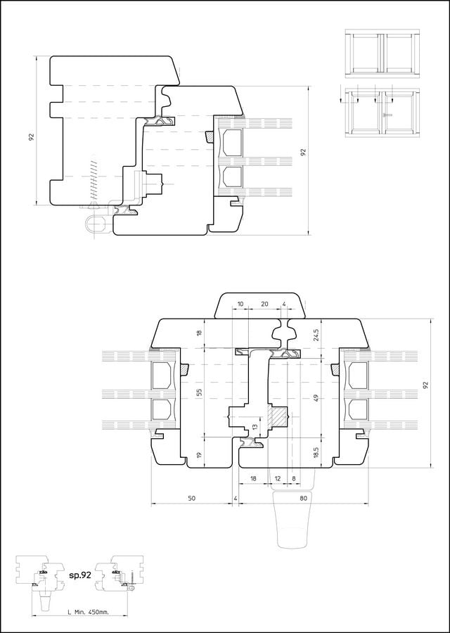
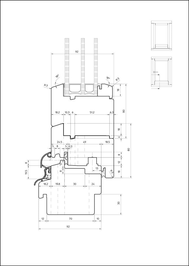
Okna pasywne 92

Grubość profilu:
92 mm

Wersje stylistyczne listewki kołoszybowej oraz krawędzi ramy i skrzydła:
- classic, softline w standardzie
- retro i zabytkowe za dopłatą


Materiał – klejonka czterowarstwowa:
- sosna łączona na mikrowczepy
- sosna o zewnętrznych warstwach litych
- świerk łączony na mikrowczepy
- świerk o zewnętrznych warstwach litych
- meranti o zewnętrznych warstwach litych
- dąb o zewnętrznych warstwach litych
- modrzew syberyjski o zewnętrznych warstwach litych

Powłoka lakiernicza wykończona farbami firmy TEKNOS:
- kolory z palety RAL oraz NCS
- kolory lazurowe


Okucia niemieckiej firmy G-U:
- uchylne,
- rozwieralne,
- rozwieralno-uchylne z mikrowentylacją,
- przesuwno-harmonijkowe,
- uchylno-przesuwne typu MZ lub PSK,
- podnoszono-przesuwne typu HS

Szklenie - szyba potrójna dwukomorowa 4T/18/4/18/4T Ug=0,5 W/m2K w standardzie
Możliwość zastosowania:
- ciepłych ramek,
- szprosów międzyszybowych,
- szyb antywłamaniowych, bezpiecznych, ornamentowych itp.

Silikon:
szyby zespolone silikonowane obustronnie silikonem firmy WACKER DEVENTER w kolorach dopasowanych do stolarki

Okapniki:
Aluminiowe firmy ALURON:
- główny ościeżnicowy AWZ 14/27 + listwa kołoszybowa APS20 w kolorze białym, brązowym, oliwkowym, złotym, srebrnym lub z palety kolorów RAL.
- główny ościeżnicowy AWZK 14/22 + listwa kołoszybowa APSK20 w kolorze białym, brązowym, oliwkowym, złotym, srebrnym lub z palety kolorów RAL.
- główny ościeżnicowy aluminiowy AWZ styl z połączeniem drewnianym (za dopłatą, zazwyczaj w oknach zabytkowych)
Za dopłatą:
- drewniane
- główny ościeżnicowy aluminiowy AWZ styl w połączeniu z drewnianym (zazwyczaj w oknach zabytkowych)

Klamki:
firmy Hoppe TOKYO w kolorze białym, srebrnym lub stare złoto w standardzie
- inne modele firmy Hoppe za dopłatą

Uszczelki firmy DEVENTER:
Główna SP125 oraz krawędziowa SV103B w kolorze beżowym, białym, czarnym, popielatym lub brązowym.

Opcje dodatkowe:
- szprosy naklejane na szybę
- szprosy konstrukcyjne
- szprosy naklejane na szybę wraz z duplexami imitującymi podział szyby na poszczegolne pola tzw. „szprosy wiedeńskie”
- kratki otwierane 

Kontakt

Telefon

+48 694 685 919
+48 18 26 78 238

Adres

Firma Stoldrew
Rdzawka 192
34-700 Rabka-Zdrój

© Copyright 2025 Stoldrew. All Rights Reserved.

Best AI Website Creator